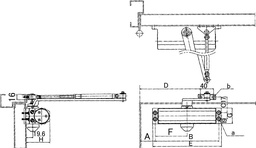
DOOR CLOSER STANDARD, MAXIMUM DOOR WEIGHT 45KGS

IMPA: 490602

Unit Of Measure: SET